Ваш регион: Краснодар
close
Мы угадали?
Регистрация
пн-пт: 09:00 - 18:00выходные: 10:00 - 16:00
8 (800) 222-25-92г.Керчь, ул.Маршала Ерёменко 7
0
РАССЧИТАТЬ САУНУ
Печь электрическая Harvia Vega Compact E ВС35 Е без пульта
Код товара: 70134
Гарантия
Скорость
Лучшая цена
Свой склад
ГарантияЕсли купленный у нас товар вышел из строя в процессе эксплуатации, мы отремонтируем егоСкоростьДеловые линии
ПЭК
Байкал Сервис
Мейджик Транс
ЮТЭК
Лучшая ценаСамые низкие цены по НовороссийскуСвой складСобственный склад c постоянным наличием товаров
Описание Отзывы Гарантии Оплата Доставка Обмен/возврат
Описание

Harvia Vega Compact BC35E – это стильная электрическая каменка, отличающаяся энергоэффективностью, эргономичностью и надежностью. Разработанная специально для небольших семейных бань и саун, эта модель обладает всем необходимым для простого и эффективного использования. Мощность в 3,5 кВт и 12-килограммовая каменная кладка обеспечивают быстрый и равномерный прогрев помещения объемом от 2 до 4,5 кубических метров. Компактные размеры корпуса и настенное крепление гарантируют эффективное размещение прибора в небольшом пространстве, оставляя достаточно места для комфортного передвижения. Harvia Vega Compact BC35E также отличается простотой использования. В данной модели отсутствует встроенный блок управления, поэтому для регулировки режима работы каменки необходимо приобрести выносной пульт управления отдельно. Кроме того, пользователю доступна возможность стандартной регулировки температуры и объема пара с помощью воды, выплескивая необходимое количество жидкости на каменную кладку, что позволяет создавать идеальные условия для расслабления в парилке.

Финский бренд Harvia уже более 60 лет является символом качества в мире банных технологий. Их электропечи представляют собой совершенное сочетание традиционного финского сауностроения и инновационных инженерных решений. Это инвестиция в здоровье и комфорт, которая окупается годами безупречной работы и непревзойденным качеством банных процедур. При правильном выборе модели и профессиональной установке они становятся надежным источником тепла и удовольствия на десятилетия.

Технические особенности и инновации. Сердцем каждой электропечи Harvia являются нагревательные элементы премиум-класса. Особого внимания заслуживает интеллектуальная система управления. Флагманские модели оснащены цифровыми контроллерами с точностью регулировки до 1°C, возможностью программирования сеансов и интеграцией с системами "умного дома".

  • Керамические нагреватели - обеспечивают мягкое тепло и повышенную безопасность
  • Нержавеющие ТЭНы - для интенсивного прогрева и долговечности
  • Комбинированные системы - сочетают преимущества разных типов нагрева

Серии электропечей Harvia. Богатый модельный ряд электропечей Harvia охватывает все возможные запросы — от скромных домашних саун до премиальных банных комплексов, демонстрируя исключительную глубину проработки рынка компанией.

  • Cilindro - компактные цилиндрические печи для домашнего использования (мощность 3-8 кВт)
  • Legend - профессиональные решения для коммерческих саун (до 15 кВт)
  • Vega - инновационные модели с вертикальной загрузкой камней
  • KIP - элитные печи с WiFi-управлением и сенсорными панелями
  • Modulo - модульные системы с возможностью наращивания мощности
  • Moderna - современный дизайн с плоскими панелями управления
  • Club - оптимальное решение для фитнес-клубов и СПА-центров
  • Spirit - экономичные модели начального уровня
  • Trendi - стильные печи с нестандартными цветовыми решениями
  • Virta - интеллектуальные системы с голосовым управлением
  • Topclass - премиальные модели с титановыми нагревателями
  • Profi - промышленные решения для круглосуточной эксплуатации
  • Senator - классические печи в ретро-стиле

Модификации серий. Гибкая система модификаций электропечей Harvia — от экономичных базовых версий до профессиональных решений с расширенным функционалом — позволяет точно адаптировать оборудование под конкретные задачи, где каждая деталь соответствует их индивидуальным требованиям к банным процедурам, и бюджет, сохраняя при этом неизменно высокое качество бренда.

  • Combi - универсальные модели, сочетающие функции сауны и русской бани с увеличенной каменкой и улучшенной парогенерацией
  • Compact - уменьшенные версии печей для небольших помещений с оптимизированными габаритами при сохранении мощности
  • Pro - профессиональные версии с усиленной конструкцией, улучшенными нагревательными элементами и расширенными настройками
  • E - экономичные варианты с базовой комплектацией, ориентированные на минимальную стоимость при сохранении качества
  • Profi - промышленные решения для коммерческого использования с повышенной износостойкостью и увеличенным сроком службы

Дополнительные особенности модификаций. Модификации Harvia предлагают особые технологичные решения для любых условий эксплуатации.

  • Combi - имеют двойную систему нагрева (сухой+влажный пар) и увеличенный объем камней (до 40 кг)
  • Compact - идеальны для малогабаритных саун 2-4 м?, часто с боковой загрузкой камней
  • Pro - оснащаются профессиональными контроллерами с точностью регулировки до 0.5°C
  • E - используют упрощенные панели управления и стандартные нагревательные элементы
  • Profi - рассчитаны на 10-15 циклов нагрева в сутки, с защитой от перегрузок

Безопасность и сертификация. Все электропечи Harvia проходят многоступенчатую систему проверок и имеют:

  • Международные сертификаты CE, EAC, RoHS
  • 6-уровневую систему защиты от перегрева
  • Автоматическое отключение при перегрузках
  • Защиту от детей на панелях управления
  • Антикоррозийное покрытие всех металлических деталей

Рекомендации по установке. Для оптимальной работы электропечей Harvia необходимо учитывать:

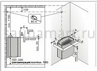
  • Требуемую мощность (4-6 кВт на 4-6 м? для домашних саун)
  • Тип электропроводки (рекомендуется отдельная линия)
  • Расстояние до горючих материалов (от 30 см)
  • Качество вентиляции в парной
  • Профессиональный монтаж дымохода (для моделей с дымоотводом)

Эксплуатация и уход. Электропечи Harvia требуют минимального обслуживания:

  • Регулярная замена камней (каждые 2-3 года)
  • Чистка нагревательных элементов 1-2 раза в год
  • Проверка соединений и проводки
  • Использование только чистой воды для пара

Преимущества бренда. Выбирая Harvia, вы получаете:

  • Гарантию до 7 лет на основные компоненты
  • Сервисное обслуживание по всей России
  • Полную совместимость с аксессуарами бренда
  • Энергоэффективные технологии
  • Продуманный эргономичный дизайн

Брeнд: Harvia
Мощность: 3,5 кВт
Объем парной мин. (куб.м): 2
Объем парной макс. (куб.м): 4.5
Масса камней: 12 кг
Напряжение: 220/380 В
Дата публикации на авито: 2018-12-05
Город в авито: Краснодар
Пульт управления: Выносной (не в комплекте)
Ширина: 280 мм
Высота: 505 мм
Тип: Vega Compact E
Глубина: 270 мм
Вес: 7 кг
Монтаж: Настенный
Парогенератор: Нет
Цвет корпуса: Серый
Тип каменки: Открытый
Установка: Настенная
Маркеры товаров: Хит
Отзывы

Отзывы к Печь электрическая Harvia Vega Compact E ВС35 Е без пульта +ДОБАВЬТЕ СВОЙ ОТЗЫВ

Мария 15 октября 2019 г.
Отличная очень компактная печь, в нашу баньку маленькую самое то!

Написать отзыв

Ваше имя
E-mail
Комментарий
Оцените товар по 5-ти бальной шкале:
1 2 3 4 5
Оставить отзыв
Гарантии

Исчисление гарантийного срока начинается:

  • Со дня передачи Товара клиенту, если иное не предусмотрено договором

  • Если день установить невозможно, срок исчисляется со дня изготовления Товара

  • Для сезонных товаров — с момента наступления сезона

  • При дистанционной продаже — со дня доставки Товара

  • Гарантийным обслуживанием является бесплатное устранение недостатков продукции, возникших по вине изготовителя, при условии соблюдения правил эксплуатации, устанавливаемых изготовителем. Все гарантийное и постгарантийное обслуживание товаров производится специализированными авторизированными сервисными центрами фирм-производителей, имеющими на то соответствующие полномочия.
Оплата

Оплачивайте покупки удобным Вам способом:

  • Наличными при самовывозе или доставке курьером (для г. Краснодар);

  • Пластиковой картой при самовывозе;

  • Безналичным расчетом для юридических лиц и ИП, с быстрой отправкой после платежа;

  • По счёту в отделении любого банка.
Доставка

При заказе от 50 000 руб. доставка за наш счет


При заказе оборудования (печи, парогенераторы, пульты управления, освещение) от 50 000 рублей мы производим доставку за наш счет до терминала транспортной компании вашего города.

Доставка по Краснодару


Возможен самовывоз товара со склада в Краснодаре. Минимальная стоимость покупки при которой осуществляется доставка 7000 рублей. Доставка по городу Краснодар от 1000 руб.

krd_del_price.jpg

Доставка в регионы России


Стоимость доставки товара до транспортной компании в г. Краснодар для отправки товаров по России - 1000 руб. при сумме заказа менее 40 000 руб.

Наша компания отправляет оборудование в регионы России следующими транспортными компаниями:

Сроки доставки


По Краснодару осуществляем доставку собственным транспортом в день заказа, либо на следующий день. По договоренности с клиентом сроки могут меняться. 

С понедельника по пятницу, за исключением праздничных дней, доставка осуществляется во временном интервале с  9:00 до 18:00.

Обмен/возврат
  • Обмен и возврат товара надлежащего качества

    Покупатель вправе отказаться от заказанного Товара надлежащего качества в любое время до момента исполнения Заказа, а после передачи Товара — в течение 14 дней со дня его покупки.

    Возврат Товара надлежащего качества возможен в следующих случаях:
    • Товар не был в употреблении, были сохранены его потребительские свойства, товарный вид, упаковка, ярлыки, а также документ, подтверждающий факт и условия покупки указанного Товара (товарный или кассовый чек, документация к товару).

    • Товар не входил в «Перечень непродовольственных товаров надлежащего качества, не подлежащих возврату или обмену на аналогичный товар других размеров, формы, габарита, фасона, расцветки или комплектации» (утв. Постановлением Правительства РФ от 19.01.1998г № 55).

  • Обмен и возврат товара ненадлежащего качества

    В случае обнаружения потребителем недостатков Товара и предъявления требования о его замене Продавец обязан заменить такой Товар в течение 7 (семи) дней со дня предъявления указанного требования потребителем, а при необходимости дополнительной проверки качества такого Товара Продавцом — в течение 20 (двадцати) дней со дня предъявления указанного требования. Если у Продавца в момент предъявления требования отсутствует необходимый для замены Товар, замена должна быть проведена в течение 1 (одного) месяца со дня предъявления такого требования.

  • Обмен и возврат технически сложных товаров ненадлежащего качества

    Товар может быть признан технически сложным согласно Перечню технически сложных Товаров, утвержденному Постановлением Правительства РФ от 10.11.2011 № 9.

    Претензия Покупателя по возврату, обмену Товаров указанной категории принимается к рассмотрению на основании заключения экспертизы авторизованного сервисного центра.

    Обмен производится путем его замены на Товар этой же марки (модели, артикула) или на такой же Товар другой марки (модели, артикула) с соответствующим перерасчётом покупной цены и стоимости доставки.

    Возврат Товара производится путем отказа потребителя от исполнения договора купли-продажи и возврата уплаченной за такой Товар суммы. Возврат оплаты будет осуществлен в такой же форме, в которой производилась оплата Товара.

Акции

Внимание! Акции и скидки на товары не суммируются. Вы можете воспользоваться только одним акционным или скидочным предложением. Приятных покупок!

Сопутствующие товары

г. Краснодар, ул.Российская, 30
×